The Property
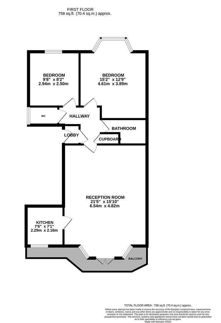
The property: a bright and spacious two bedroom first floor apartment with accommodation comprising a large living and dining room which measures 21’5 x 15’10 with a bay window and double doors opening to a small balcony, the kitchen is separate and fitted with modern units. There are two bedrooms, a family bathroom and separate w/c. Available May.
The location: situated in an enviable location within immediate walking distance of the seafront and the centre of St. Leonards which offers a collection of artisan shops, restaurants, cafes and a mainline railway station with links to London stations.
- First floor apartment
- Bay fronted living and dining room
- Well presented throughout
- Two bedrooms
- Central St. Leonards location
- Offered part furnished / unfurnished
- Available May


The perfect location
The delights on your doorstep.
The properties location
Take a closer look at the local area to gain an understanding of what's near to your doorstep.
Open mapGet in touch today
Liking this property?
If this property ticks all the right boxes and you see this as the perfect home for you, then please fill out the form to request a viewing.













