The Property
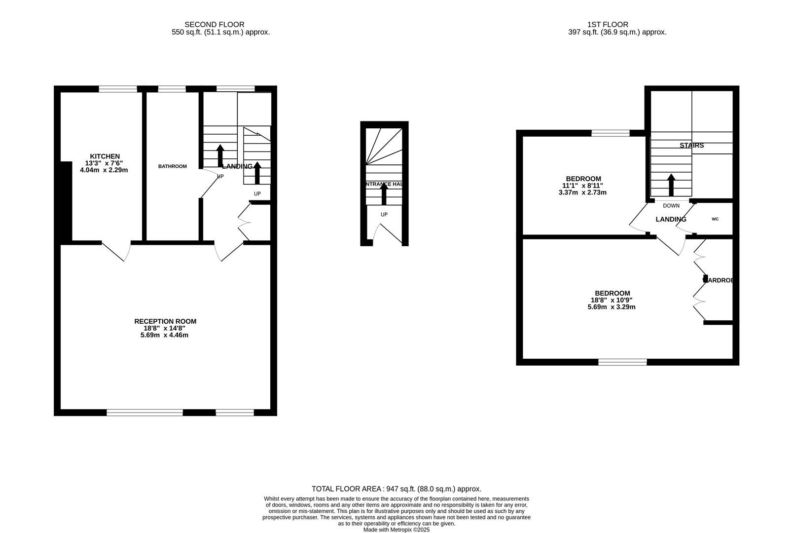
The property: a beautifully presented two bedroom maisonette spanning the second and third floor of this attractive period building. The accommodation comprises a bright living room which measures an impressive 18’8 x 14’8 enjoying a leafy front aspect and a feature fireplace, leading through to the kitchen which is fitted with contemporary units offering ample storage and worktop space. The stylish family bathroom can also be found on this floor featuring a bath and separate shower enclosure while the third floor houses two double bedrooms where the principal bedroom relishes stunning sea views, together with a separate w/c on the landing. Available early December.
The location: situated in a sought after location in St. Leonards-On-Sea within walking distance to the seafront and the hub of St. Leonards which offers a collection of independent shops, restaurants and a mainline railway station with connections to London. There are additional shopping facilities and a supermarket on Bohemia Road and Hasting Town centre is also within easy reach.
- Two double bedrooms
- Top floor maisonette
- Large living space
- Fitted kitchen
- Bathroom and separate w/c
- Close to amenities
- Available early December


The perfect location
The delights on your doorstep.
The properties location
Take a closer look at the local area to gain an understanding of what's near to your doorstep.
Open mapGet in touch today
Liking this property?
If this property ticks all the right boxes and you see this as the perfect home for you, then please fill out the form to request a viewing.


















