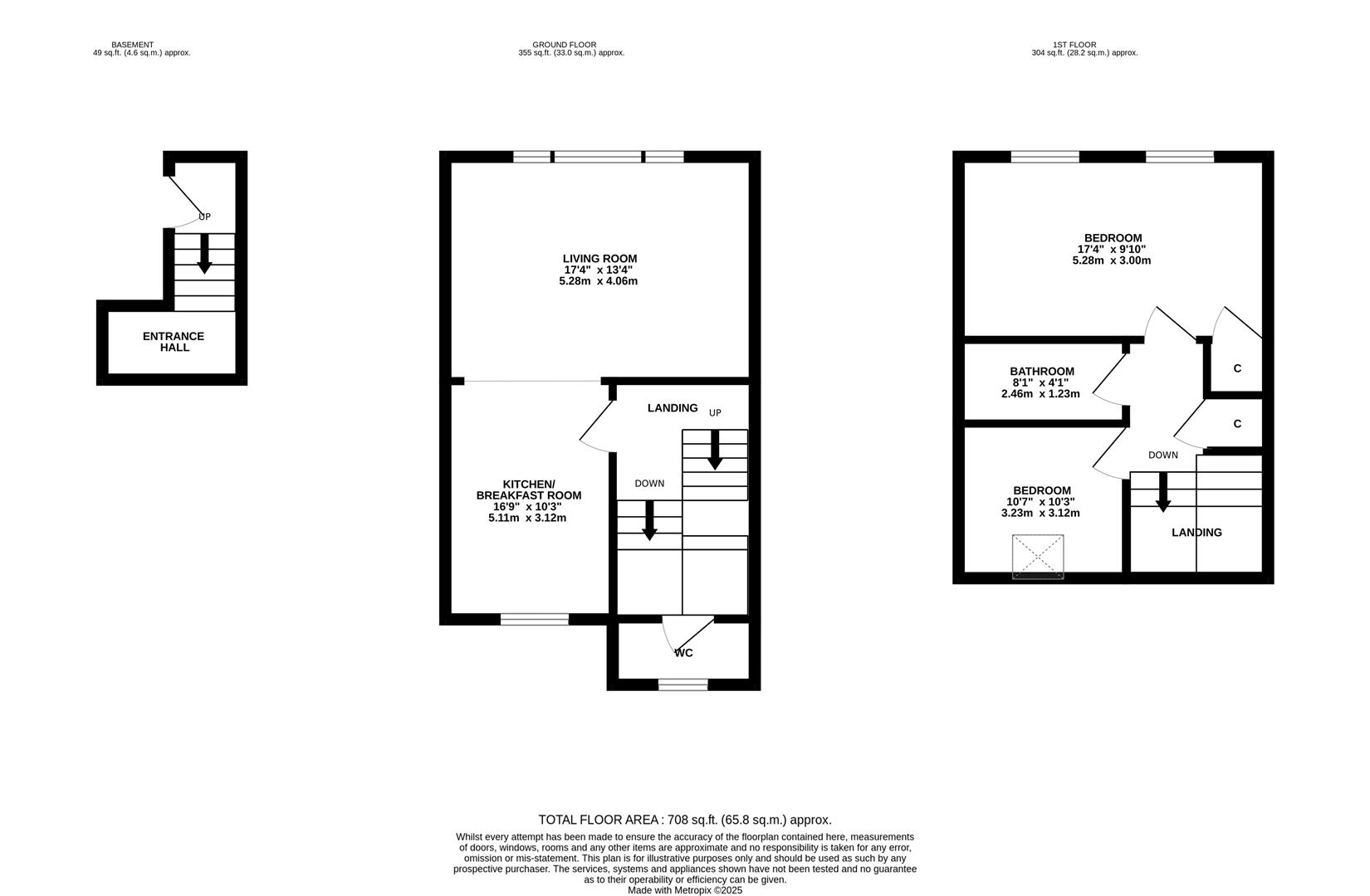
The Property
The property: a newly refurbished two bedroom maisonette occupying the upper two floors of this period building. The accommodation here is beautifully presented throughout and comprises a bright living room which is open to the newly fitted kitchen with wood effect flooring flowing throughout and there is also a downstairs cloakroom on the half landing. On the upper floor there are two well proportioned bedrooms together with a family bathroom. Available immediately.
The location: situated in a central position in Hastings Town centre within immediate walking distance of the mainline railway station, shopping and leisure facilities, restaurants and the beach.
- Two bedrooms
- Split level maisonette
- Well presented
- Central location
- Bright & spacious throughout
- Available now

The perfect location
The delights on your doorstep.
The properties location
Take a closer look at the local area to gain an understanding of what's near to your doorstep.
Open mapGet in touch today
Liking this property?
If this property ticks all the right boxes and you see this as the perfect home for you, then please fill out the form to request a viewing.

















