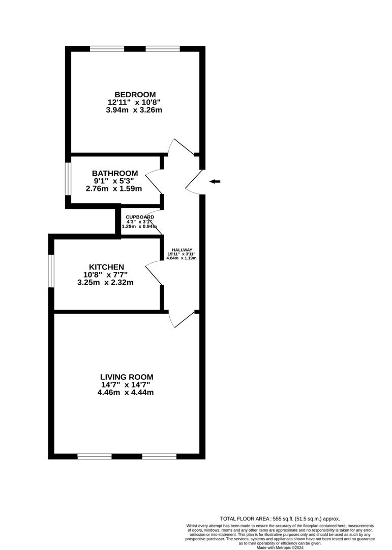
The Property
The property: a well presented one double bedroom apartment located on the ground floor of this period building. Accessed via communal entrance to the front of the building the accommodation comprises a light and spacious living room to the rear, separate kitchen, part tiled family bathroom with shower over the bath, and a double bedroom to the front. This property is extremely spacious and neutrally decorated throughout. Available now.
The location: The apartment is based within close proximity to St Leonards Warrior Square station (with links to London, Gatwick and Brighton), the independent shops and cafes of Kings Road and Norman Road, and St Leonards beach and seafront promenade.
- Ground floor apartment
- One double bedroom
- Central location
- Spacious throughout
- Neutrally decorated
- Available now


The perfect location
The delights on your doorstep.
The properties location
Take a closer look at the local area to gain an understanding of what's near to your doorstep.
Open mapGet in touch today
Liking this property?
If this property ticks all the right boxes and you see this as the perfect home for you, then please fill out the form to request a viewing.














